Capannone industriale – Pellegrino Parmense (PR)

Pellegrino Parmense (Parma)

Rif: V-2528
Condividi Linkedin Whatsapp Stampa
Tratt. riservata
Vendita
Capannone industriale
660 Mq
Classe energetica Non indicata
In posizione strategica, immerso nel verde delle Colline Parmensi ma facilmente raggiungibile, proponiamo un capannone industriale di recente costruzione (anno 2010), realizzato secondo le più aggiornate normative antisismiche - un plus oggi fondamentale per sicurezza, valore e affidabilità dell'investimento.

CARATTERISTICHE PRINCIPALI DELL'IMMOBILE
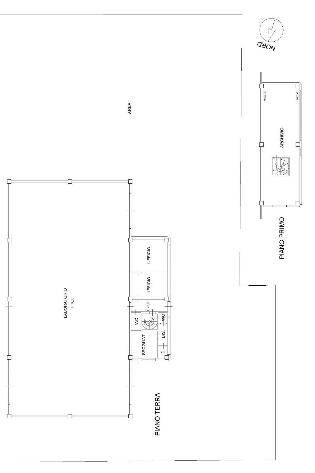
• Superficie coperta ad uso Officina / area produttiva: ca. 500 m²
• Superficie coperta ad uso Direzionale, Archivio / spogliatoi-bagni: ca. 160 m²
• Altezza utile interna: capriate da 6 metri, ideali per lavorazioni, macchinari o scaffalature industriali
• Doppio portone carrabile su entrambi i lati (dimensioni 4,5 m x 4,5 m): perfetta gestione dei flussi di mezzi e materiali, anche di grandi dimensioni
• Struttura moderna, completamente conforme alle normative vigenti e pronta all'uso
• Copertura: a falde coibentate .

SPAZI INTERNI BEN ORGANIZZATI
Il capannone è concepito per garantire massima funzionalità e comfort:
Piano Terra
• Uffici operativi luminosi e ben distribuiti
• Officina / area produttiva ampia e versatile
• Spogliatoi e servizi per il personale, già predisposti e funzionanti
Piano Primo
Un livello con grande potenziale, attualmente allo stato da completare, che offre possibilità uniche:
• Ampliamento di uffici direzionali
oppure
• Realizzazione di una zona living con soggiorno, camera da letto e bagno, ideale per chi desidera vivere o presidiare l'attività direttamente sul posto

AREA ESTERNA E POSSIBILITÀ DI AMPLIAMENTO
• Superficie totale del lotto: ca. 2.150 m²
• Ampi spazi di manovra per camion e mezzi pesanti
• Possibilità di ampliamento volumetrico grazie all'estensione del terreno
• Area perfetta per stoccaggio materiali, parcheggi aziendali, piazzali o nuove costruzioni

PUNTI DI FORZA
• Costruzione recente e antisismica certificata
• Accessi multipli e capriate alte per ampie tipologie di attività
• Spazi interni modulabili, pronti per essere personalizzati
• Ampio terreno con potenzialità di sviluppo
• Accesso tramite strada comunale, con buona percorribilità per automezzi industriali
• Contesto tranquillo e panoramico, ma comodo alle principali arterie di comunicazione

IDEALE PER:
• Laboratori artigianali
• Officine meccaniche
• Magazzini e logistica
• Aziende manifatturiere
• Attività miste con parte produttiva e uffici
• Professionisti che desiderano integrare lavoro e abitazione nello stesso complesso

Un'opportunità rara:
Una struttura moderna, solida, già a norma e con spazi straordinariamente versatili, pronta per accogliere e far crescere qualsiasi attività.

Rif: V-2528

Contattaci per maggiori informazioni o per prenotare una visita

MARAZZI Immobiliare
Piazza Casana 30, Lugagnano Val d'Arda (PC).

Dettaglio immobile

Contratto Vendita
Rif V-2528
Prezzo Tratt. riservata
Provincia Parma
Comune Pellegrino Parmense
Indirizzo Via Padre Mattei
Superficie 660 mq
Classe energetica Non indicata
Riscaldamento autonomo
Condizioni ottime condizioni
Ascensore no

Consistenze

Descrizione Superficie Sup. comm.
Principali
Laboratorio - piano terra 500 Mq 500 Mqc
Ufficio - piano terra 80 Mq 80 Mqc
Ufficio - 1° piano 80 Mq 80 Mqc
Accessorie
Esterno - piano terra 1.600 Mq 160 Mqc
Totale 820 Mqc

Planimetrie

Richiedi maggiori informazioni

Autorizzazione al trattamento dei dati personali+
Dichiaro di aver letto l'informativa sulla privacy ed accetto le condizioni d'utilizzo del servizio.
Riempi il campo con il codice riportato nell'immagine*
Codice Captcha
Chiamaci Contattaci